Paparoa Views - Ball Developments

Discover the beauty and functionality of our serene subdivision nestled on the stunning West Coast of New Zealand.  Facing the Paparoa Ranges, this new Residential sub division has plenty to offer.

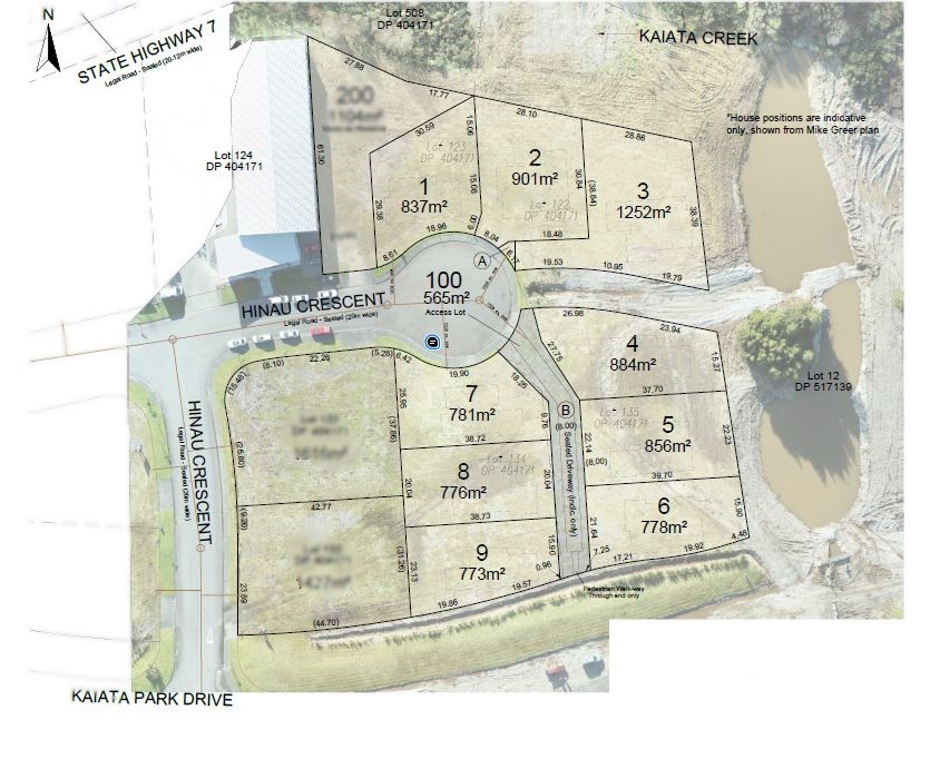
Lot 1 to Lot 9

All sections within Stage 1 are now SOLD

There are House and Land Packages available from Ball Developments and Mike Greer Homes for Lots 1, 2, 4, 5, 6, 7, 8, 9

No. of Sections

9

Priced from

SOLD

Titles Due

Titles issued

Sizes

1252m2 - 1252m2

Price & Size List

Lot no.StageLand areaPriceOptionsTitle status
1OneSOLDH&L Package by Ball Developments availableTitles issued
2OneSOLDH&L Package by Ball Developments availableTitles issued
3One1252m2SOLDTitles issued
4OneHouse for SaleH&L Package by Mike Greer Homes availableTitles issued
5OneSOLDH&L Package by Mike Greer Homes availableTitles issued
6OneDue to startH&L Package by Mike Greer Homes availableTitles issued
7OneHouse for SaleH&L Package by Ball Developments availableTitles issued
8OneHouse for SaleH&L Package by Ball Developments availableTitles issued
9OneDue to startH&L Package by Ball Developments availableTitles issued

Lot 16 to Lot 22 and Lot 25 to Lot 31

Contact us for further information

No. of Sections

14

Priced from

$295,000

Titles Due

Early 2027

Sizes

1899m2 - 4045m2

Lot 16 to Lot 22, Lot 25 to 31

Lot no.StageLand areaPriceOptionsTitle status
16Two2085m2UNDER OFFERTitles due early 2027
17Two2430m2UNDER OFFERTitles due early 2027
18Two1899m2UNDER OFFERTitles due early 2027
19Two1983m2UNDER OFFERTitles due early 2027
20Two2539m2UNDER OFFERTitles due early 2027
21Two2161m2$350,000Titles due early 2027
22Two2158m2$355,000Titles due early 2027
23
TwoSOLD
25Two2140m2$305,000Titles due early 2027
26Two2308m2$295,000Titles due early 2027
27Two3305m2$305,000Titles due early 2027
28Two4045m2$315,000Titles due early 2027
29Two2699m2$295,000Titles due early 2027
30Two2152m2$295,000Titles due early 2027
31Two2076m2Titles due early 2027

Price & Size List

Contact us for further information

No. of Sections

15

Priced from

$240,000

Titles Due

Early 2027

Sizes

615m2 - 1226m2

Lot 37 to Lot 51

Lot no.StageLand areaPriceOptionsTitle status
37Three1201m2NOT FOR SALE
38Three784m2$245,000Build Package by GJ Gardner Homes availableTitles due early 2027
39Three828m2$245,000Build Package by GJ Gardner Homes availableTitles due early 2027
40Three694m2$240,000Build Package by GJ Gardner Homes availableTitles due early 2027
41Three698m2$240,000Build Package by GJ Gardner Homes availableTitles due early 2027
42Three817m2$250,000Build Package by GJ Gardner Homes availableTitles due early 2027
43Three751m2$250,000Build Package by Green Homes availableTitles due early 2027
44Three885m2$250,000Titles due early 2027
45Three635m2$250,000Titles due early 2027
46Three615m2$250,000Titles due early 2027
47Three761m2$250,000Titles due early 2027
48Three814m2$240,000Titles due early 2027
49Three841m2$240,000Titles due early 2027
50Three711m2$250,000Titles due early 2027
51Three741m2NOT FOR SALETitles due early 2027

Lot 62 to Lot 90

The Design concept for Stage 3A will be known as the “Paparoa Village”.

Contact us for further information

No. of Sections

29

Priced from

$145,000

Titles Due

Early 2027

Sizes

350m2 - 609m2

Price & Size List

Lot no.StageLand areaPriceOptionsTitle status
623A468 m2$165,000Titles due early 2027
633A552m2$160,000Titles due early 2027
643A609m2$160,000Titles due early 2027
653A363m2$150,000Titles due early 2027
663A368m2$145,000Build Package by Mike Greer Homes availableTitles due early 2027
673A368m2$145,000Build Package by Mike Greer Homes availableTitles due early 2027
683A356m2$145,000Titles due early 2027
693A443m2$145,000Titles due early 2027
703A385m2$145,000Titles due early 2027
713A354m2$145,000Titles due early 2027
723A360m2$145,000Build Package by Mike Greer Homes availableTitles due early 2027
733A362m2$145,000Build Package by Mike Greer Homes availableTitles due early 2027
743A361m2$145,000Build Package by Mike Greer Homes availableTitles due early 2027
753A361m2$145,000Build Package by Williams Corp availableTitles due early 2027
763A366m2$145,000Build Package by Williams Corp availableTitles due early 2027
773A351m2$145,000Build Package by Green Homes availableTitles due early 2027
783A354m2$150,000Titles due early 2027
793A373m2$150,000Build Package by Alphouse availableTitles due early 2027
803A353m2$150,000Build Package by Alphouse availableTitles due early 2027
813A355m2$150,000Build Package by Alphouse availableTitles due early 2027
823A357m2$150,000Build Package by Alphouse availableTitles due early 2027
833A362m2$145,000Build Package by Williams Corp availableTitles due early 2027
843A350m2$145,000Build Package by Green Homes availableTitles due early 2027
853A350m2$145,000Build Package by Green Homes availableTitles due early 2027
863A389m2$145,000Titles due early 2027
873A351m2$150,000Titles due early 2027
883A352m2$145,000Build Package by Mike Greer Homes availableTitles due early 2027
893A352m2$145,000Build Package by Mike Greer Homes availableTitles due early 2027
903A360m2$145,000Build Package by Williams Corp availableTitles due early 2027

Overall Marketing Plan

Work in progress view of the overall development that includes Paparoa Views and Kaiata Park.

 

House & Land Packages

Ball Developments Limited in association with GJ Gardner Homes & Mike Greer Homes West Coast have House and Land packages available for residential sites at Paparoa Views

8 Hinau Cres Landscaping completed

Ball Developments Limited

8 Hinau Crescent, Paparoa Views, Kaiata

SOLD

837 m2

173.9 m2

2

4

2

3

SOLD

Consented Plans  
9 Hinau Cres Landscaping completed with outdoor living

Ball Developments Limited

9 Hinau Crescent, Paparoa Views, Kaiata

SOLD

938 m2

196.95 m2

2

4

2

2

SOLD

Consented Plans  

Ball Developments Limited

11C Hinau Crescent, Paparoa Views, Kaiata

Asking price $790,000

773 m2

172 m2

2

3

2

1

Artist Impression

Consented Plans  

A look into the future

The "Paparoa Views Village"

In association with AlpHouse we are excited to offer a preview into another Stage of Paparoa Views called “The Paparoa Views Village”.  This development model is currently with our Designers and submission to council for Resource Consent will be happening soon.

This village will have approximately 50 Short term accommodation units.  Floor plans will range between 24m2 to 60m2.  These will be quality built Studio, One Bedroom and Two Bedroom units that will exceed the latest building code.  They will be warm, dry, healthy and cost efficient.  This is the perfect property investment in the Rental Market.

AlpHouse  

Launch of Paparoa Views Residential Development at Kaiata

Grey District Mayor - Tania Gibson

We were honoured to have Her Worship the Mayor – Tania Gibson as a guest speaker at our launch of our Residential subdivision at Paparoa Views, Kaiata Park.

We are very appreciative of her support with this development.

Click the link below to listen to what Tania had to say.

 

Mayor Tania Gibson - Launch of Paparoa Views Residential Development at Kaiata Park  

Paparoa Views Location

Secure a section in Paparoa Views today!

Here, you don’t just live — you thrive. It’s a place where elegance meets nature, and where every day feels like a retreat. Whether you’re looking to build a family legacy or simply enjoy the finest things in life, Paroa Estate is the ideal place to create memories that will last a lifetime.

Welcome to the next chapter of your life — a blend of luxury, nature, and unparalleled living.

"*" indicates required fields

This field is for validation purposes and should be left unchanged.